Интерьер без плинтуса – тренд в современном дизайне. Создать такое оформление можно с помощью скрытого и теневого плинтуса, или используя уникальный профиль – микроплинтус.
Микроплинтус в интерьере – едва заметная линия, маскирующая компенсационный зазор между стеной и полом. Особенностью профиля является простая установка после завершения всех отделочных работ и укладки напольного покрытия. Микроплинтус позволяет создать лаконичный интерьер, даже если в дизайн-проекте изначально был заложен обычный плинтус.
Микроплинтус - эстетичное и практичное решение для Вашего интерьера. В отличии от пробкового компенсатора или силиконового герметика, микроплинтус выглядит стильно и имеет отличные эксплуатационные характеристики: профиль прочный, влагостойкий и не деформируется со временем.
Для напольных покрытий с низким коэффициентом линейного расширения, толщиной от 5 мм (включая толщину подложки).
Перекрывает зазор между стеной и напольным покрытием 5-8 мм.
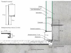
Профиль Micro-Mini имеет ширину всего 11мм. Это делает его самым незаметным профилем среди всех микроплинтусов LACONISTIQ.
В комплекте 5 зажимов.
